Présentation du Projet
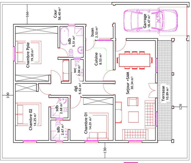
Leaders City I résulte d’une collaboration entre la société immobilière Cislo et l’entreprise énergétique de renom, la Côte d’Ivoire Énergie. Ce remarquable complexe résidentiel propose une diversité de logements, allant des élégantes villas basses aux duplex économiques et aux luxueuses résidences haut de gamme. Leaders City I c’est 38 villas basses de 04 pièces et 67 villas duplex de 05 pièces avec 03 espaces verts.
Idéalement situé à seulement cinq minutes en voiture du Palais de Justice de Bingerville, Leades City I offre un cadre de vie privilégié, alliant commodité et prestige. Niché dans un environnement paisible, ce complexe bénéficie d’une accessibilité remarquable aux principales infrastructures de la région, assurant ainsi un quotidien confortable pour ses résidents.
Doté d’équipements modernes et de finitions de qualité, chaque logement a été pensé pour offrir un confort optimal et répondre aux besoins des résidents les plus exigeants. Que ce soit pour une vie en famille, un investissement immobilier ou un cadre de vie de qualité, Leades City I représente l’opportunité idéale pour ceux qui recherchent l’excellence dans leur lieu de résidence.
















